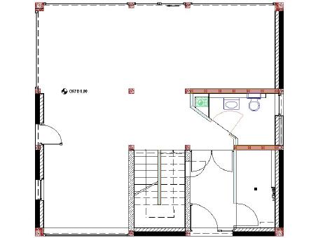
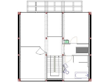
Musterhaus
Ihr Haus kann verschieden Formen haben.
Es kann ein Bungalow sein oder z.B ein formschönes, zeitloses und funktionelles Haus. In jedem Fall aber ist es ein modernes Fachwerkhaus.
Für jeden dieser Typen bieten wir Ihnen hier je ein Beispiel.
Lassen Sie sich inspirieren!





